Search

Leave a Message

Thank you for your message. We will be in touch with you shortly.

Explore Our Properties

Property Description

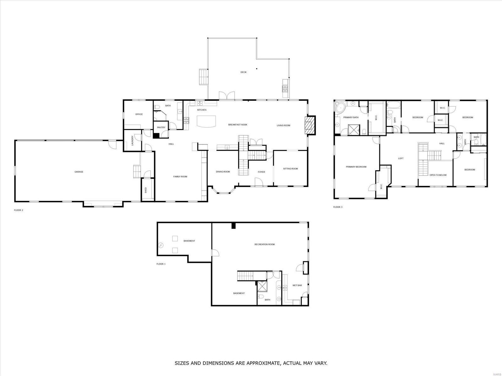
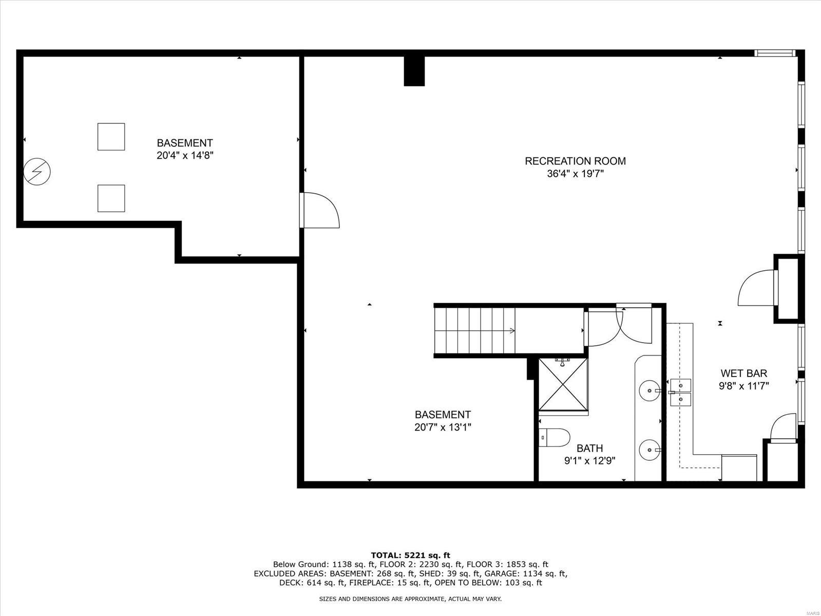
This breathtaking 5 bed 5 bath is in the Lindbergh School District & boasts functional beauty at every turn! A 2-story foyer welcomes you w/ wood floors leading to the dining room w/ a bay window. Through the family room, sunlight illuminates the living room w/ a stone fireplace. The eat-in kitchen offers abundant cabinetry, a custom wet bar & a disguised subzero fridge. A great room hosts built-ins w/ 2 fridges for elevated convenience & a laundry room, office & full bath complete the main floor. Atop the double staircase, a common area invites you to convene. 4 bedrooms line the hall including a vast master suite w/ 2 walk-in closets, 2 sinks & a separate tub/shower. A Jack & Jill bath joins 2 rooms w/ another full bath in the hall. The LL has a large rec space, kitchenette & full bath w/a dual Hollywood-style vanity. The outdoor area has a spacious covered patio w/ ceiling fans & a grill station walking out to a 2nd patio. A 3-car garage & sizeable yard are the cherries on top.

Overview

Property Status
Sold
Lot Size
0.63 Acres
MLS ID
24015198
Property Type
Residential
Year Built
2005

Features & Amenities

Architecture Styles
Traditional, Other
Stories
2
Garage Spaces
3.0
Water Source
Public
Lot Features
Corner Lot
Parking
RV Access/Parking, Attached, Garage, Garage Door Opener, Oversized, Storage, Workshop in Garage
Heat Type
Forced Air, Natural Gas
Air Conditioning
Ceiling Fan(s), Central Air, Electric
Laundry Room
Main Level
Fireplace
Recreation Room, Wood Burning, Family Room
Appliances
Dishwasher, Disposal, Gas Cooktop, Range Hood, Refrigerator, Stainless Steel Appliance(s), Gas Water Heater
Other Interior Features
Separate Dining, High Ceilings, Walk-In Closet(s), Bar, Breakfast Bar, Breakfast Room, Kitchen Island, Granite Counters, Pantry, Walk-In Pantry, Double Vanity, Tub, Two Story Entrance Foyer
Sewer
Public Sewer
Disability Features
Accessible Central Living Area, Accessible Common Area, Accessible Entrance, Accessible Full Bath, Accessible Kitchen
Other Exterior Features
Barbecue, Entry Steps/Stairs
Elementary School
Crestwood Elem.
Middle School
Truman Middle School
High School
Lindbergh Sr. High
School District
Lindbergh Schools
Price Upon Request

Downloads

4037 S Lindbergh Boulevard

Schedule a Tour

We would love to help you see this beautiful home! As a full-service brokerage, we can help you tour. Please submit an offer, and answer questions about the buying process.

Enter a valid email

Thank you

for your interest in 4037 S Lindbergh Boulevard, St Louis, MO 63127

back to page
4037 S Lindbergh Boulevard
Navigate

I'm Interested In

4037 S Lindbergh Boulevard

or
  • CallLynn Andel

    License #2004015811

    314.609.0139
  • Follow Us On Instagram